
힐스테이트 광교중앙역 퍼스트
| 세대수 | 211세대(총4개동) | 저/최고층 | 12층/20층 |
| 사용승인일 | 2024년 9월 | 총 주차대수 | 세대당 6.53대 |
| 용적률 | 399% | 건폐율 | 59% |
| 건설사 | (주)현대건설 | ||
| 난방 | 지역난방, 열병합 | ||
| 주소 | 수원시 영통구 이의동 1333 | ||
| 면적 | 26평~36평 | ||
현대건설의 프리미엄 브랜드 "힐스테이트"로, 고급 마감재와 설계 적용한 단지 이면서 신분당선 광교중앙역 3번 출구 바로 앞, 지하 3층에서 역과 직접 연결. 강남역까지 신분당선으로 약 30~35분, 수원역(1호선, GTX-C 예정)까지 차로 10분 내외.신분당선 연장(광교~호매실) 및 GTX-A(2028년 개통 예정)로 교통망 더욱 강화 예상. IT 기업(삼성전자 수원사업장) 및 고소득 전문직 종사자 밀집 지역으로 학군 수요 높음. 초역세권 입지, 뛰어난 생활 편의성, 교육 환경, 높은 투자 가치를 모두 갖춘 단지입니다. 특히 2025년 3월 무순위 청약으로 나온 물량은 분양가가 시세 대비 낮아 "로또"로 불릴 만한 기회죠. 실거주와 투자 모두를 고려한다면 놓치기 아까운 단지입니다.



입지 분석
| 교통 | 신분당선 광교중앙역 도보 1분 강남역 까지 38분 소요 |
| 학교 | 신설초등학교 27년 개교 예정, 현재 산의 초등학교 배정 |
| 환경 | 롯데아울렛, 롯데마트, 갤러리아백화점 도보 10분 이내 |
청약 일정
| 청약 접수 | 3월 17일 월 오전 10시 ~ 오후 5시 |
| 당첨자 발표 | 3월 20일 목 |
| 계약일 | 3웓 27일 |
청약 체크사항
| 분양사 상한제 | 적용 |
| 전매 제한 | 의무 없음 |
| 거주 의무 기간 | 3년 |
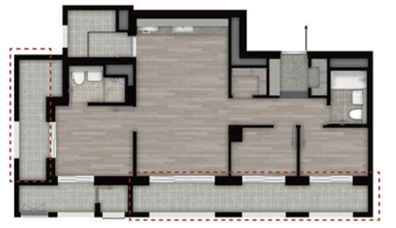
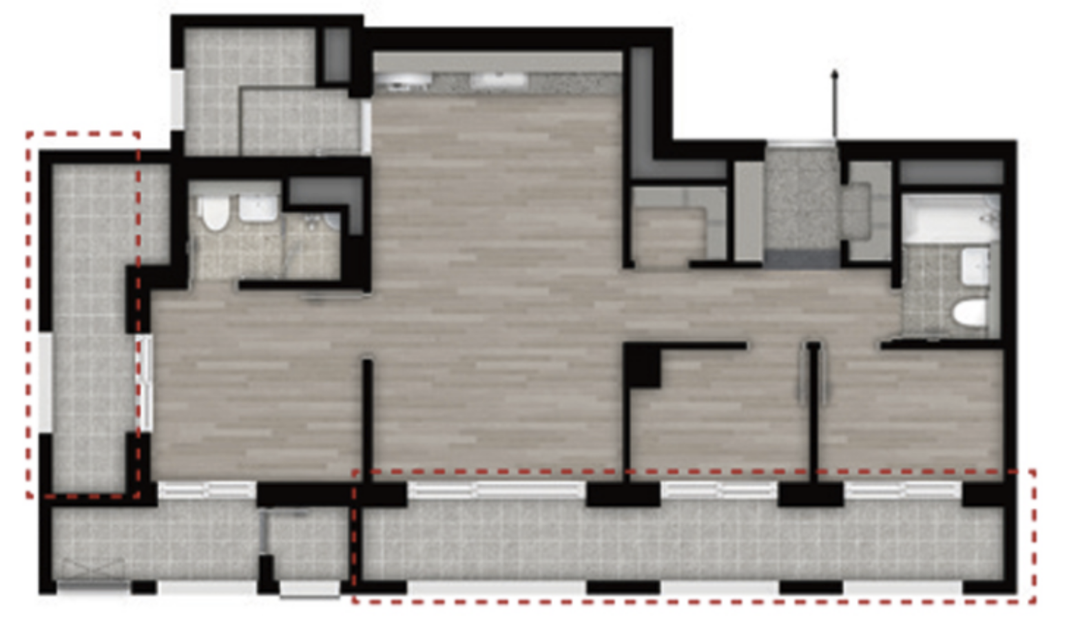
단지 배치도

청약 대상
| 무순위 | 계약 취소분 | |
| 동호수 | 103동 402호 | 103동 504호 |
| 면적 | 69㎡ | 84㎡ |
| 청약자격 | 전국민 가능 | 수원시민 |
| 분양가 | 7.7억 (+1.3억 옵션,발코니) | 9.3억 (+1.6억 옵션,발코니) |
| 평면도 | ![]() |
![]() |
※ 무순위 청약 : 미분양 물량이 생겼거나 계약이 취소된 주택 혹은 청약 부적격자 등으로 잔여 가구가 발생한 것
※ 계약 취소분 : 불법 전매나 부적격 당첨 등 부동산 공급 질서 교란해 사업주체가 당첨자의 계약을 취소한 후 재공급 하는 것
계약 시 자금 일정
3월 말 계약금 20% 계약으로 부터 2개월 이내인 5월 날 까지 잔금 80%이 준비 되어야 합니다.
분양금과 계약금 자금 마련에 무리가 없으신 분들은 청약에 도전해 보세요.
무순위 청약 개편방안 발표
로또 청약이라 불리면서 청약 열풍에 참여 했던 무순위 청약 도전자 들에게 실망 스러운 뉴스가 들려 왔습니다. 무순위 청약 제도를 개편한다고 하는데요. 청약 신청자격을 무주택자로 한정하
eodisala.com
무순위 청약 공고
자세한 내용은 아래 입주 공고문을 참고해 주세요.
'부동산 > 청약 정보' 카테고리의 다른 글
| 청약 초보 필수! 무순위, 임의공급, 취소 후 재공급 핵심용어 완벽 해설 (0) | 2025.04.05 |
|---|---|
| 지역별 주택청약 예치금과 스마트한 입금 전략 (0) | 2025.03.12 |
| 북수원자이 렉스비아 무순위 청약 (0) | 2025.03.03 |
| SH 장기미임대 매입임대주택 입주자 25년 1차 모집공고 안내 (0) | 2025.03.03 |
| 대구청약정보 : e편한세상 동대구역 센텀스퀘어 (0) | 2025.03.02 |


